

The Maasshaven in Rotterdam is transformed into a mixed-use area of housing and industry. The shallow water for the harbor allows the construction of residential towers directly into the water, expanding the city space for the growing population.
The harbor was historically heavily industrialized. Shipping goods were directly delivered via loading towers connected to the factories. We propose to transform the harbor into a stripe of residential water towers and a stripe of industrial buildings to keep the production in the city.

The focus site contains four old brick stone buildings from the 19th century, which are connected to the small loading tower from the first level. New industrial buildings are added on land and residential towers connected by bridges are placed in the water.

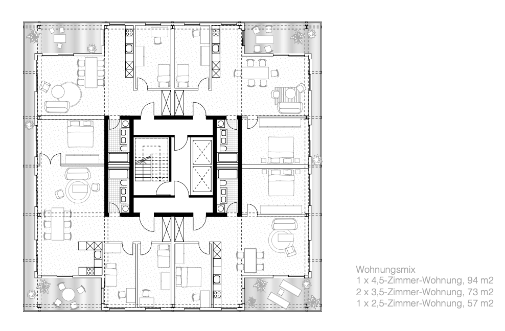
Residential towers
The residential towers are steel frames with concrete cores. Most levels contain four apartments (2,5 – 4,5 rooms). The ground level contains communal spaces and access to a jetty.




Industrial buildings
A new production site for Quaker Oats. At the back side towards the water front this building is connected to a loading tower. This loading tower contains a “Matrosenlodge” – facilities for sailers spending the night at Maashaven.




Collaboration with Sina Auf der Maur and Mira Weingarten.
